Magnifique Bungalow à vendre à Polleur

Rue Xhavée, 28, 4910 Theux (Bon), BE
Contactez-nous

Dominique Dufour

Contactez notre agent immobilier pour une visite

Informations générales

Référence
V4365A
Prix
299.000 €
Type:
Maison
Surface habitable:
109.00 m2
Chambre:
2
E

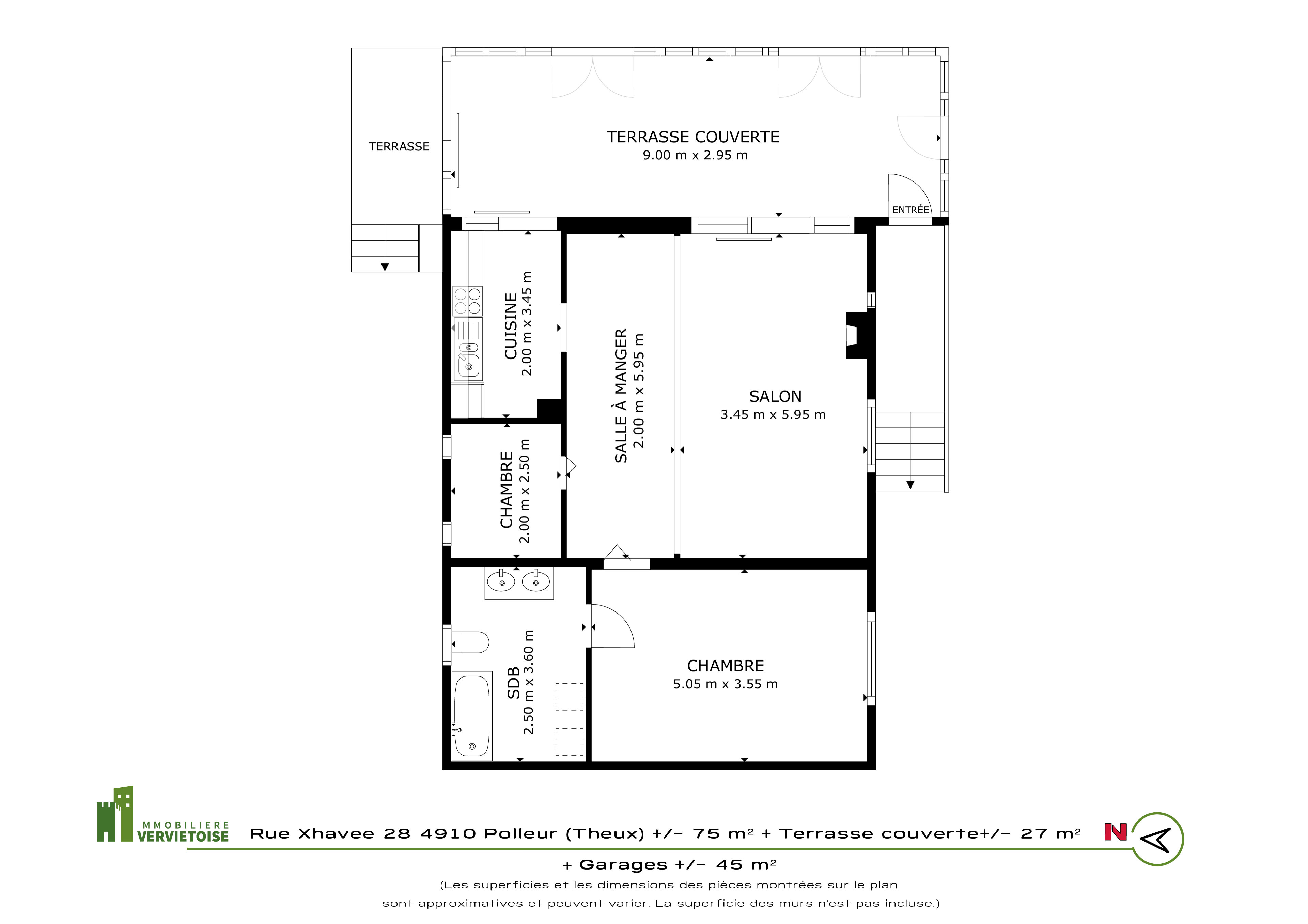
Description

Nous venons de dénicher une nouvelle pépite! Situé à Polleur, dans un environnement paisible et verdoyant, ce bungalow bénéficie d’un emplacement en retrait de la route, garantissant calme et intimité. La maison est baignée de lumière naturelle grâce à ses espaces de vie agréables et bien orientés.

Elle se compose de deux chambres à coucher, d’un séjour lumineux + véranda, d’une cuisine fonctionnelle et d’une salle de bain.

Le chauffage est assuré par une installation au mazout, offrant un confort thermique appréciable. Ce bien conviendra parfaitement à ceux qui recherchent une habitation de plain-pied, au calme, tout en restant proche des commodités.

Une opportunité à découvrir sans tarder.

L’immobilière Verviétoise vous offre une exclusivité sur les réseaux sociaux pendant 48 heures avant d’être diffusée sur les autres site. Suivez-nous sans attendre. Les photos, visite virtuelles et plans ne sont pas contractuels. - Immobilière Verviétoise - 087/33.03.49 - info@i-v.be -

Situation

Détails

  • E
  • Chambre 1 18 m2
  • Chambre 2 5 m2
  • Cuisine 7 m2
  • Salle de bains 9 m2
  • Bureau 1 5 m2
  • Salon 21 m2
  • Salle à manger 12 m2
  • Séjour 33 m2
  • Garage 2
  • Nombre de pièces 7
  • E
  • Raccordement Oui
  • Raccordement aux égouts Fosse septique
  • Surface du terrain 690 m2
  • Prodondeur du terrain 23 m
  • Longueur du terrain 30 m
  • Type de construction Construction traditionnelle
  • Style d'architecture Classique
  • E
  • Revenu cadastral 587 €
  • E
  • Type d'environnement Campagne
  • Entrée d'autoroute 4000 m
  • Centre ville 1400 m
  • Ecole 1000 m
  • Gare 7000 m
  • Hôpital 7000 m
  • E
  • Chauffage Mazout
  • Type de cuisine Semi-équipée
  • Equipement salle de bains Double vasques
  • Type de vitrage Double
  • Volets Electriques
  • Internet Oui
  • Télédistribution Oui
  • Porte de garage électrique Oui
  • E
  • Orientation du jardin Nord Est
  • Terrasse 9 m2
  • Orientation de la terrasse Nord Ouest
  • Jardin boisé Oui
  • Jardin Oui
  • E
  • Disponibilité A l'acte
  • E
  • Année de construction 1962
  • Année de rénovation 1963
  • Type de toit Tuiles
  • Parking intérieur 1
  • Parking extérieur 2
  • Etat général Bon
  • E
  • Code unique PEB 20180910019109
  • Cons. tot. energie primaire 42416 kWh par an
  • Cons. spéc. d'énergie primaire 388 kWh/m² par an
  • Date de validité 2028-09-10T13:29:00.000Z
  • Emissions carbone 10502
  • Certificat electrique Oui
  • E
  • Nombre de bureaux -1
  • E
  • Type de zone inondable Zone non inondable

Contact

Estimation gratuite en quelques clics