Loft à vendre à Verviers

Rue de Liège, 52, 4800 Verviers (Excellent état), BE
Contactez-nous

Dominique Dufour

Contactez notre agent immobilier pour une visite

Informations générales

Référence
V4366
Prix
235.000 €
Type:
Appartement
Surface habitable:
117.00 m2
Chambre:
2
E

Description

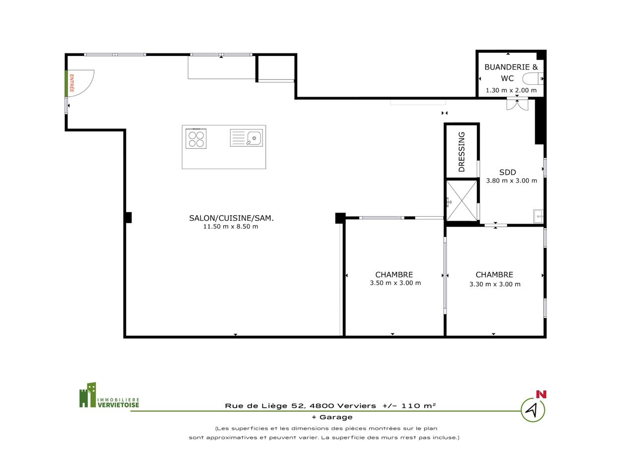
Situé à proximité de la gare, ce loft de 117 m2 est situé au rez-de-chaussée de l'immeuble. Il dispose d'une entrée privative et d'un garage box fermé. Il est en PARFAIT état. 

Il offre une très belle cuisine équipée ouverte avec le séjour, 2 chambres, une salle-de-bain, un débarras et un wc séparé.

Idéal pour un couple ou un investissement.

Compteurs séparés et électricité conforme.

Une visite s'impose. 

L’immobilière Verviétoise vous offre une exclusivité sur les réseaux sociaux pendant 48 heures avant d’être diffusée sur les autres site. Suivez-nous sans attendre. Les photos, visite virtuelles et plans ne sont pas contractuels. - Immobilière Verviétoise - 087/33.03.49 - info@i-v.be -

Situation

Détails

  • E
  • Chambre 1 11 m2
  • Chambre 2 10 m2
  • Cuisine 28 m2
  • Salle de bains 11 m2
  • Salon 70 m2
  • Séjour 98 m2
  • Buanderie 2
  • Dressing 3 m2
  • Nombre de pièces 6
  • Garage Oui
  • Adapté aux petits animaux de compagnie Oui
  • E
  • Raccordement Oui
  • Raccordement aux égouts Raccordé
  • E
  • Revenu cadastral 740 €
  • E
  • Type d'environnement Urbain
  • Centre ville 2 m
  • Piscine 5 m
  • Cinéma 10 m
  • Crèche 10 m
  • Ecole 1 m
  • Gare 2 m
  • Hôpital 2 m
  • Entrée d'autoroute Oui
  • E
  • Accès Handicapé Oui
  • Chauffage Gaz
  • Type de cuisine Equipée
  • Cuisine ouverte Oui
  • Equipement salle de bains Simple vasque
  • Double vitrage Isolation thermique
  • Type de vitrage Double
  • Châssis PVC
  • Parlophone Oui
  • Visiophone Oui
  • Internet Oui
  • Télédistribution Oui
  • Thermostat Oui
  • Accès chaise roulante Oui
  • E
  • Disponibilité A l'acte
  • E
  • Année de construction 1955
  • Année de rénovation 2010
  • Parking intérieur 1
  • Etat général Excellent
  • Nombre d'étage 1
  • Etage du bien 0
  • E
  • Code unique PEB 20260115014515
  • Cons. tot. energie primaire 42947 kWh par an
  • Cons. spéc. d'énergie primaire 336 kWh/m² par an
  • Date de validité 2036-01-15T14:43:00.000Z
  • Emissions carbone 8184
  • Certificat electrique Oui
  • Certificat electrique conforme Oui
  • E
  • Type de zone inondable Zone non inondable
  • Permis de bâtir obtenu Oui

Contact

Estimation gratuite en quelques clics