Splendide appartement 2 chambres à Balmoral

Balmoral, 29, 4900 Spa (Excellent état), BE
Contactez-nous

Gaëlle Simon

Contactez notre agent immobilier pour une visite

Informations générales

Référence
L2450
Prix
900 €
Type:
Appartement
Surface habitable:
98.00 m2
Chambre:
2
A+

Description

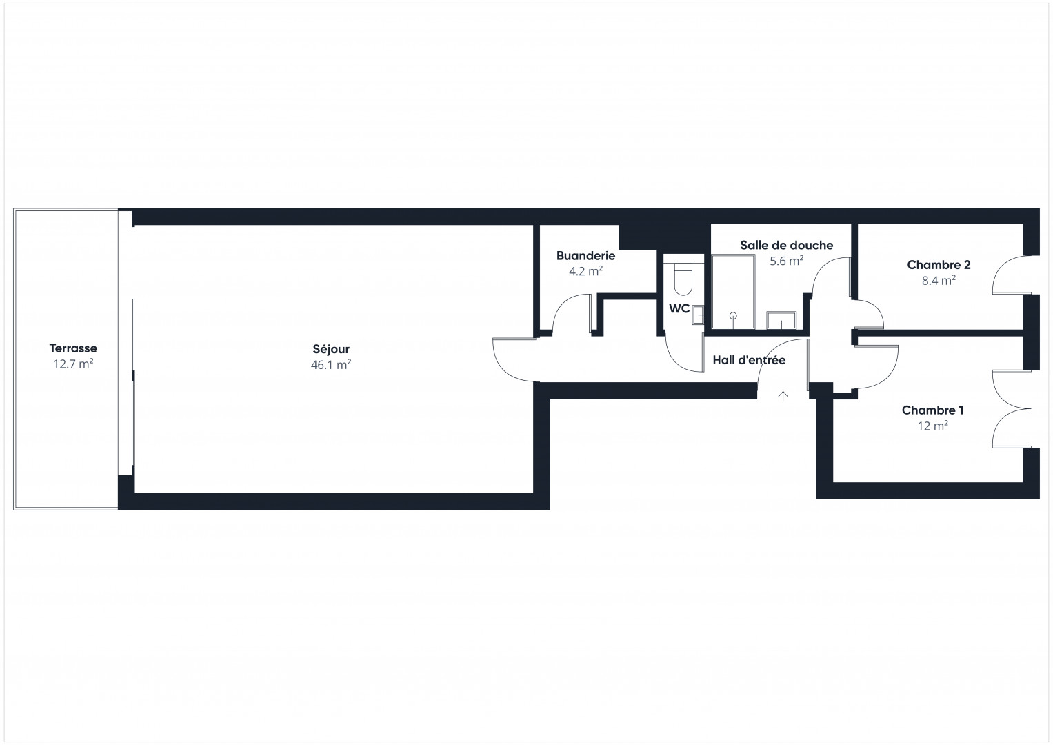
Venez vite découvrir cet appartement flambant neuf dans la résidence « Les Charmes » sur Balmoral. On vous offre un cadre de vie exceptionnel avec comme voisines, les Fagnes à perte de vue. La qualité WUST se ressent à tous les niveaux. La qualité thermique, phonique ainsi que les finitions sont simplement top. Le living de 46m² (cuisine équipée comprise) bénéficie d’une magnifique luminosité et est en liaison directe avec votre terrasse orientée plein sud. Il vous offre également 2 chambres, une SDB avec douche italienne et une consommation d'énergies individuelle. De plus, la cave, les emplacement de parking intérieur et extérieur privatifs sont inclus. Programmez vite une visite et rendez-vous sur notre plateforme en ligne sécurisée pour déposer votre candidature : https://lock2loc.com/biens/a-louer.  L'Immobilière Verviétoise - 087/33.03.49 - info@i-v.be

Situation

Détails

  • A+
  • Chambre 1 8.5 m2
  • Chambre 2 11.5 m2
  • Salle de bains 6 m2
  • Séjour 46 m2
  • Garage 1
  • Caves 4 m2
  • Espace rangement 4 m2
  • Nombre de pièces 8
  • A+
  • Raccordement Oui
  • Raccordement aux égouts Raccordé
  • Type de construction Construction traditionnelle
  • Style d'architecture Contemporain
  • A+
  • Charges mensuelles 100 €
  • A+
  • Type d'environnement Résidentiel
  • Entrée d'autoroute 1700 m
  • Centre ville 4000 m
  • Piscine 3800 m
  • Ecole 2000 m
  • Gare 4400 m
  • Hôpital 4500 m
  • A+
  • Type de publication Normal
  • A+
  • Accès Handicapé Oui
  • Ascenceur Oui
  • Chauffage Gaz
  • Type de cuisine Equipée
  • Equipement salle de bains Simple vasque
  • Double vitrage Isolation acc. et therm.
  • Type de vitrage Double
  • Châssis Aluminium
  • Porte blindée Oui
  • Parlophone Oui
  • Internet Oui
  • Télédistribution Oui
  • Porte de garage électrique Oui
  • A+
  • Terrasse 12 m2
  • Orientation de la terrasse Sud
  • A+
  • Quartier / lieu-dit Balmoral
  • Nom du bien Résidence Les Charmes
  • A+
  • Année de construction 2021
  • Nouvelle construction Oui
  • Parking intérieur 1
  • Parking extérieur 1
  • Etat général Excellent
  • Nombre d'étage 4
  • Etage du bien 2
  • A+
  • Syndic 40 €
  • Entretien intérieur 20 €
  • Charges communes intérieur 20 €
  • Entretien extérieur 20 €
  • Charges communes exterieur 20
  • A+
  • Nombre de caves 1
  • A+
  • Type de zone inondable Zone non inondable

Contact

Estimation gratuite en quelques clics