Magnifique appartement idéalement situé à Liège

Rue des Fories, 19, 4020 Liège (Excellent état), BE
Contactez-nous

Gaëlle Simon

Contactez notre agent immobilier pour une visite

Informations générales

Référence
L2451
Prix
1.000 €
Type:
Appartement
Surface habitable:
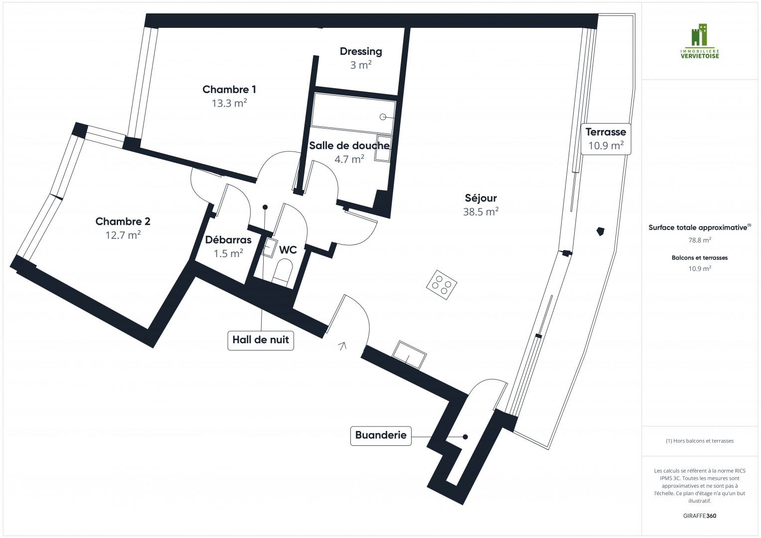
110.00 m2
Chambre:
2
C

Description

Situé dans un endroit stratégique entre le parc d'Avroy et le parc de la Boverie, à deux pas de la médiacité et de la gare des Guillemins, ce superbe appartement au coeur de Liège n'attend que vous.

Au dernier étage de la résidence "Entre Deux Rives", l'appartement est composé d'un lumineux séjour de presque 40m² avec une cuisine super équipée, de deux chambres dont une avec un dressing, d'une salle de douche ainsi qu'une cave. Pour finir, ce bien offre une magnifique terrasse avec une vue à 180° sur la cité Ardente.

Profitez de la visite virtuelle de ce bien et promenez-vous vous dans les pièces. Afin de programmer une visite, rendez-vous sur notre plateforme en ligne sécurisée : https://lock2loc.com/biens/a-louer et postulez via le bouton vert. L'immobilière Verviétoise 087/33.03.49 - info@i-v.be

Situation

Détails

  • C
  • Chambre 1 13 m2
  • Chambre 2 12 m2
  • Salle de bains 5 m2
  • Séjour 38 m2
  • Buanderie 2
  • Caves 4 m2
  • Dressing 3 m2
  • Espace rangement 2 m2
  • Nombre de pièces 5
  • C
  • Raccordement Oui
  • Raccordement aux égouts Raccordé
  • Type de construction Construction traditionnelle
  • Style d'architecture Classique
  • Nombre d'annexes 0
  • C
  • Charges mensuelles 160 €
  • C
  • Type d'environnement Urbain
  • C
  • Type de publication Normal
  • C
  • Ascenceur Oui
  • Chauffage Gaz
  • Type de cuisine Super-équipée
  • Equipement salle de bains Douche
  • Double vitrage Isolation acc. et therm.
  • Type de vitrage Double
  • Châssis PVC
  • Porte blindée Oui
  • Parlophone Oui
  • Internet Oui
  • Télédistribution Oui
  • Thermostat Oui
  • C
  • Terrasse 10 m2
  • C
  • Disponibilité Immédiatement
  • C
  • Quartier / lieu-dit Boverie
  • Nom du bien Entre Deux Rives
  • C
  • Etat général Bon
  • Nombre d'étage 5
  • Etage du bien 5
  • C
  • Code unique PEB 20150904003404
  • Cons. tot. energie primaire 18339 kWh par an
  • Cons. spéc. d'énergie primaire 197 kWh/m² par an

Contact

Estimation gratuite en quelques clics